Garage/Greenhouse
   Page 1
   Page 2 (Updated 7/6/06)
   Page 3 (Updated 7/19/06)
   Page 4 (Updated 7/4/07)
   Page 5 (Updated 7/4/07)
   Page 6 (Updated 7/4/07)

Holiday Photos

The Great Debates

Video Tour

Players

Plans

The Kitchen (3/10/07)

Progress

The Yard

The Patio

To Contribute

Fat Happy Pages

Return to Main Page

 

Plans Page


The footprint of
the house and the
lot.

See the change in
the footprint of
the house.

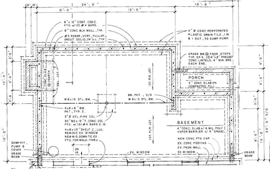
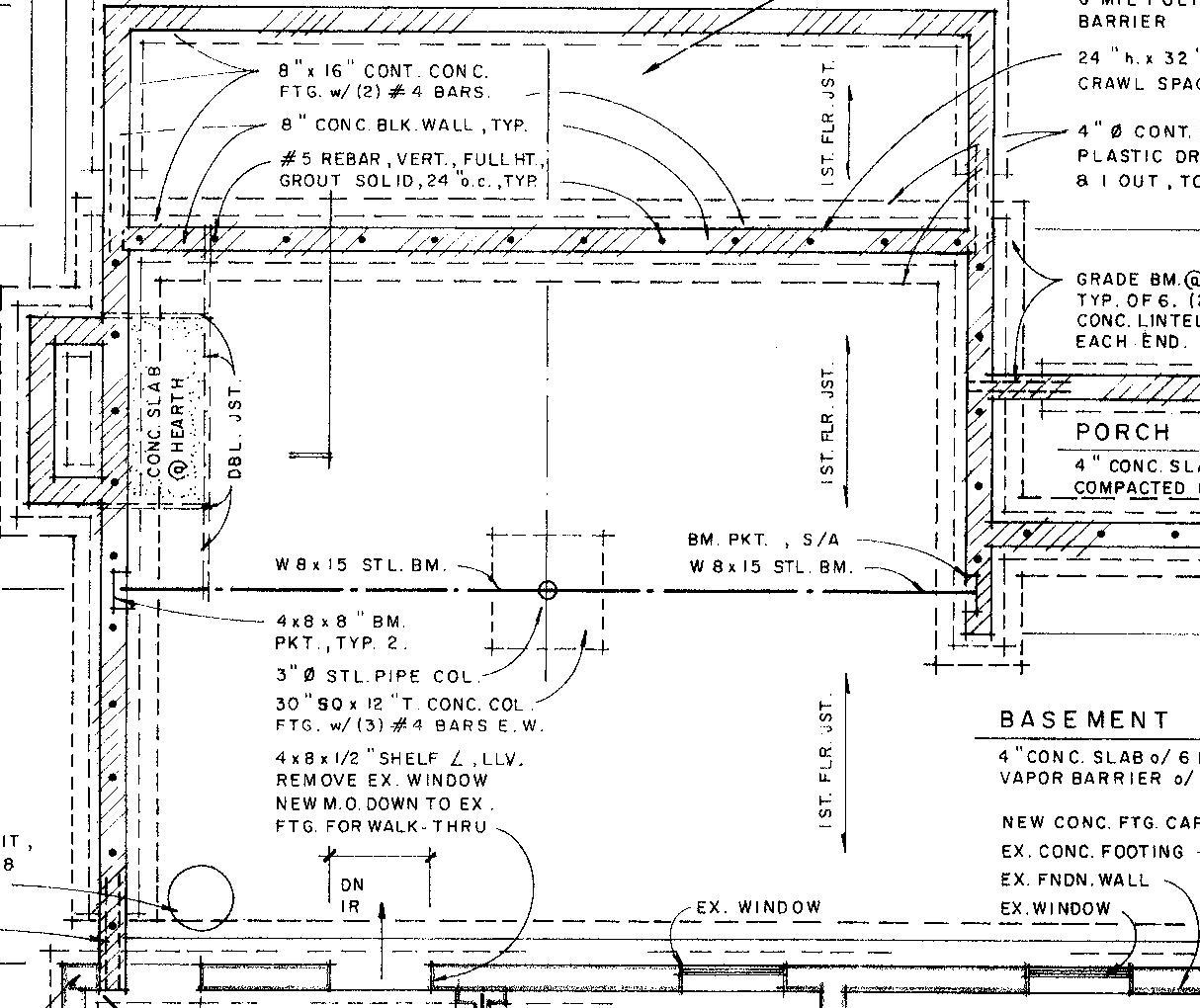
The new basement,
as originally dug.

We've been hinting at some changes,
and here they are, starting with
6 by 24 more feet of basement!

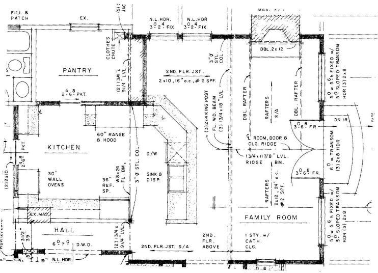
Partial of the first floor, showing the new kitchen
the 8' X 12' walk-in pantry off the kitchen, and the
10' X 24' gathering area with 14' vaulted ceilings.
Not shown in this image, off the bottom of the image,
is mud room, the formal dining room, and the
covered porch.
   

First floor with changes still to be posted.

Some things upstairs will not change..


Julie's office

The master bedroom

Existing plus new master bath